物件番号No.2672
内宮に近い国道23号線沿いの売ビル!










物件データ
物件種別
売ビル
所在地
伊勢市宇治浦田1丁目
交通
近鉄「五十鈴川駅」約1,100m
価格
5,980万円
駐車場
20台可
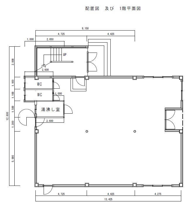
土地面積
590.92m²(178.75坪)
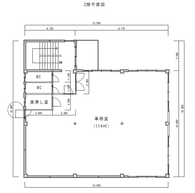
建物面積
延べ445m²(134.7坪)
チェックポイント
- 各階で独立した利用が可能です!
土地権利
所有権
地目
宅地
建物構造
鉄骨造亜鉛メッキ鋼板葺3階建
都市計画
非線引区域
用途地域
第2種中高層住居専用地域
建ペイ率
40%
容積率
200%
その他制限
景観法沿道景観形成地区 22条地域 風致地区
築年月
昭和62年10月
設備
公営水道/電気/プロパンガス/下水道
接道状況
北側 幅員約32m公道
南東側 幅員約4m道路
南東側 幅員約4m道路
現状
空
引渡
相談
取引形態
媒介
備考
※上記の土地面積は敷地外 駐車場用地(159㎡)を含みます
情報更新日
2026年01月15日
- 現況と図面が異なる場合は、現況を優先とさせていただきます。
- 物件位置図などの詳細資料をご希望の方は、お申し出下さい。メールまたはFAX等にてお送りいたします。
- 当サイト内の全ての画像・文章の無断転載を禁止します。