検 索
電話:0596-28-6035
営業時間:9:30~18:30(日祝日は18:00まで)
定休日:水曜日、第1・第3日曜日(事前にお電話いただければ対応いたします)

No.2603 伊勢市中村町 売店舗・倉庫|家を買いたい

家を買いたい

物件番号No.2603

市営内宮駐車場まで約600m!R23まで約100m!
内宮までも散歩の距離の元飲食店と倉庫!

物件データ

物件種別
売店舗、倉庫
所在地
伊勢市中村町
交通
三交バス「中村町停」まで約300m
価格
売却済
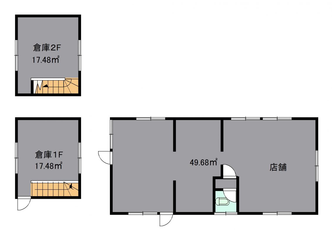
間取り
駐車場
3台可
土地面積
206.91㎡/62.59坪
建物面積
店舗49.68m²  倉庫延べ34.69㎡

チェックポイント

  • 立地を生かした業種にも!
土地権利
所有権
地目
宅地
建物構造
店舗 鉄骨亜鉛メッキ鋼板葺平屋建
倉庫 鉄骨亜鉛メッキ鋼板葺2階建
都市計画
非線引区域
用途地域
第2種中高層住居専用地域
建ペイ率
40%
容積率
200%
その他制限
景観法普通地域 22条地域、風致地区
築年月
不詳
設備
上水道/電気/プロパンガス/浄化槽
接道状況
西側 幅員約6m公道に面する
現状
空家
引渡
相談
取引形態
媒介
備考
※建物未登記。
※下水道桝あり。未接続(下水道供用区域)
情報更新日
2026年04月18日
  • 現況と図面が異なる場合は、現況を優先とさせていただきます。
  • 物件位置図などの詳細資料をご希望の方は、お申し出下さい。メールまたはFAX等にてお送りいたします。
  • 当サイト内の全ての画像・文章の無断転載を禁止します。
お問い合わせフォーム 会社概要